ファミール岸和田ステージ2-401号室 岸和田市加守町4丁目32-5【マンション】 | 高石市・堺市(南大阪全域)の中古住宅・不動産の売買は伊勢住宅株式会社

中古マンション

ファミール岸和田ステージ2

◇4階部分の南西向き角部屋につき陽当り・眺望良好◇
スーパー・病院まで徒歩6分圏内で生活便利な住環境◎

  • 販売価格1,958万円
  • 交通 南海本線「春木」駅まで徒歩7分
  • 所在地大阪府岸和田市加守町4丁目
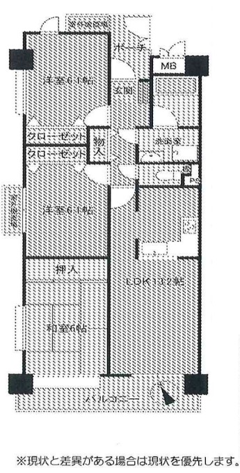
  • 間取り3LDK
  • 築年数31年
  • 専有面積 壁芯69.72m2(21.09坪)
  • 階建て RC造 地上9階建
物件情報
見学予約・お問合せはこちら

PLAN 間取り・物件情報

【HOUSE PLAN】
南西向きバルコニーに面した、たっぷりと陽光が差し込む明るい住まい。調理中でもご家族との会話が弾む対面式キッチンが採用されています。全居室6帖以上のゆったりとした広さ。水回り交換など内装リフォーム済です。

EQUIPMENT設備・特徴

  • 南向き
  • 駐車場有
  • オートロック
  • ペット相談可
  • 駅近物件
  • 築10年以内
  • 即入居可(空き家)
  • 宅配BOX有

駐車場の空き状況は要確認

LOCATION周辺環境

南海本線「春木」駅まで徒歩7分で通勤・通学に便利なロケーション。
スーパーサンエーフード田中店まで徒歩6分、岸和田市立大宮小学校まで徒歩13分!
子育て世帯にもおすすめの住環境です◎

商業施設
  • スーパーサンエーフード田中店

    徒歩6分(約480m)
  • ローソン岸和田徳洲会病院店

    徒歩4分(約320m)
教育施設
  • 岸和田市立大宮小学校

    徒歩13分(約1,040m)
  • 岸和田ひまわり保育園

    徒歩6分(約480m)
医療施設
  • 医療法人徳洲会 岸和田徳洲会病院

    徒歩4分(約320m)
公園
  • 岸和田市立まなび中央公園

    徒歩5分(約400m)

※掲載の分数表示は地図上の概測距離を徒歩は80mを1分、自転車は300mを1分として算出(端数切り上げ)したものです。

MAP

大阪府岸和田市加守町4丁目

OUTLINE物件概要

物件概要
  • 物件名ファミール岸和田ステージ2
  • 所在地大阪府岸和田市加守町4丁目
  • 交通 南海本線「春木」駅まで徒歩7分
  • 用途地域第一種住居地域
  • 総戸数72戸
  • 構造・階建てRC造 地上9階建
  • 駐車場有、空き状況要確認
  • 駐車場(月額)8,500円〜10,000円
  • 設備
    (電気・ガス・水道)
    電気・上水道・下水道・都市ガス
  • 敷地の権利形態所有権
  • 現況賃貸中
  • 完成時期(築年月)1994年11月
  • 管理組合
  • 管理会社伊藤忠アーバンコミュニティ(株)
  • 管理形態全部委託
  • 管理員日勤
  • その他
    制限事項
    ペット不可、町会費:月額200円、非住居者負担金:月額200円
  • 取引態様仲介

販売概要

  • 販売戸数1戸
  • 販売価格 1,958万円
  • 所在階 4階
  • 間取り3LDK
  • 専有面積 壁芯69.72m2(21.09坪)
  • バルコニー面積 10.07m2
  • バルコニー向き 南西
  • 設備・特徴 角住戸、南西向き、陽当り良好、和室、全居室6畳以上、システムキッチン、対面式キッチン、温水洗浄便座、内装リフォーム、フローリング張替、スーパー徒歩10分以内、総合病院徒歩10分以内、眺望良好
  • 管理費(月額) 10,250円
  • 修繕積立金 20,920円
  • その他費用(月額) 町会費:月額200円、非住居者負担金:月額200円
  • 完成時期(築年月) 1994年11月
  • 引渡し可能時期 相談
  • 情報提供日 2026年5月13日
  • 次回更新日 2026年5月27日
物件概要
見学予約・お問合せはこちら

お電話でのお問い合わせはこちら

0120-43-5551
営業時間:9:00~18:30

RECOMMEND同エリアのオススメ物件情報

中古マンション

アクアパークCITY岸和田南3番館

  • 販売価格/1,848万円
  • 交通/ 南海本線「岸和田」駅まで徒歩13分
  • 所在地/大阪府岸和田市港緑町
中古マンション

岸和田コーポラス壱号棟

  • 販売価格/790万円
  • 交通/ 南海本線「和泉大宮」駅まで徒歩12分
  • 所在地/大阪府岸和田市下野町2丁目