岸和田市春木中町 【中古戸建】 | 高石市・堺市(南大阪全域)の中古住宅・不動産の売買は伊勢住宅株式会社

中古戸建

岸和田市春木中町

◆2022年1月築!豊富な収納力&タタミ室・屋上付き◆
・敷地面積41坪超!2台分の駐車スペース付き戸建住宅(車種制限有)。
・約16.0帖のLDK、タタミ室が隣接し多用途にご活用いただけます。
・調理中でもご家族との会話が弾む対面式キッチン。
・水回りが集約されており家事動線がスムーズ。
・土間収納・WIC・廊下収納を含め、随所に収納が設けられています。
・暮らしの楽しみが広がる、広々とした屋上付きの住まいです◎

  • 販売価格3,580万円
  • 交通 南海本線「春木」駅まで徒歩8分
  • 所在地大阪府岸和田市春木中町
  • 間取り3LDK+S
  • 築年数4年
  • 土地面積 137.1m2(41.47坪)
  • 建物面積 115.93m2(35.06坪)
物件情報
見学予約・お問合せはこちら

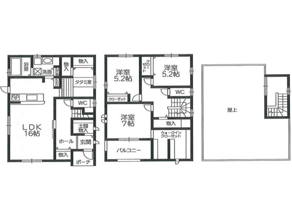
HOUSE PLAN 間取り・物件情報

【PLAN】
約16.0帖のLDKと、ご家族に個室を振り分けやすい洋室3部屋のプラン。1階には多用途に活用できるタタミ室も備わっています。土間収納やWICを含め、収納豊富!暮らしの楽しみが広がる屋上付きの住まいです。

【EXTERIOR】
南海本線「春木」駅まで徒歩8分の立地。ブラック×キューブ型のスタイリッシュな外観です。駐車スペースが2台分あり、セカンドカーや来客時に重宝します(車種制限有)。

【EXTERIOR】
前面道路は南東側幅員約4.7m。間口が約8.6mあり、室内に心地よい風や陽光を取り込みます。小学校まで徒歩2分で、子育て世帯におすすめのロケーションです。

【LDK】
キッチンからリビングまでオープンに広がる、約16.0帖のLDK。2面採光が確保された明るい室内で、ご家族揃ってゆったりとお過ごしいただけます。

【LDK】
様々なインテリアにマッチするシンプルな内装。掃き出し窓が道路に面していないため、道路からの視線が気になりにくい設計。プライバシー性の高い環境でお過ごしいただけます。

【KITCHEN】
調理中でも、お子様の様子を見守れる対面式キッチン。シンク上部・下部に収納があり、散らかりがちなキッチンをすっきり整頓できます。ゴミ出しに便利な勝手口付き。

【KITCHEN】
コンロは3口あり同時に複数品の調理が可能。忙しい時間帯も効率良くお料理を進めていただけます。グリル付きで、料理のレパートリーが増えそうです。

【BATH ROOM】
木目調のアクセントパネルが施された、あたたかみのある浴室。浴槽はベンチタイプで、お子様のステップや半身浴にご活用いただけます。

【POWDER ROOM】
3面鏡やミドルミラーが備わった洗面化粧台です。鏡裏や手洗いボウル下に収納があり、洗面用品やタオルなどを保管していただけます。

【TOILET】
スタイリッシュなタンクレストイレ。手洗い器が設けられており、使用後すぐの手洗いが可能です。1年を通して快適に使用できる温水洗浄便座付き。

【TATAMI ROOM】
LDKに隣接するタタミ室。ライフスタイルに合わせて多用途にご活用いただけます。2ヶ所の収納があり、生活用品のストック場所などに便利です。/タタミ室

【ROOM】
バルコニーに面しており開放感があります。洋室の中で一番広く主寝室におすすめ。大きめのベッドのほか、ナイトテーブルなども設置できます。/洋室約7.0帖

【WIC】
約7.0帖洋室に設けられたWICです。広々としており、衣類やスーツケース・季節家電・寝具などをたっぷりと保管できます。

【ROOM】
子供部屋や書斎・在宅ワークスペース・趣味部屋など、ご家族構成やライフスタイルに合わせて多用途にご活用いただけます。/洋室約5.2帖

【ROOM】
各洋室にはハンガーパイプ付きの収納が設けられています。収納家具の設置を最低限に、居住空間を広くご使用いただけます。/洋室約5.2帖

【STORAGE】
2階廊下から出入りでき、ご家族の生活リズムを気にせず使用していただけます。階段が近く、屋上で使用する物の保管場所としても◎/2階廊下収納

【BALCONY】
約7.0帖洋室に隣接するバルコニー。急な雨でも降り込みにくい屋根付きです。屋上もあり、広々としたプライベート空間として楽しめます。

【STORAGE】
玄関から近く、ストック類や防災備蓄・掃除用具の保管などに重宝します。縦の空間を有効活用できる棚付きです。/1階廊下収納

【ENTRANCE】
土間収納付きの玄関です。お履き物以外に、ベビーカーやゴルフバッグなど、外で使用する物も気軽に収納できます。

【EXTERIOR】
LDKの掃き出し窓から繋がる物干しスペースです。そのまま駐車スペースへと出入りが可能。雨の日でも使い勝手の良い屋根付きです。/物干しスペース

EQUIPMENT設備・特徴

  • 南向き
  • 駐車場有
  • 角地
  • トイレ2箇所
  • 駅近物件
  • 築10年以内
  • 即入居可(空き家)
  • 前面道路4m以上

LOCATION周辺環境

◆教育施設が身近に揃う、子育て世帯に嬉しい住環境◆
・小学校まで徒歩2分!幼稚園や中学校が徒歩9分圏内に揃います。
・毎日の買い物に便利なスーパーやショッピングセンターも徒歩9分圏内に有◎

教育施設
  • 岸和田市立春木小学校

    徒歩2分(約160m)
  • 岸和田市立春木中学校

    徒歩9分(約650m)
商業施設
  • サンディ岸和田春木店

    徒歩5分(約400m)
  • ラパーク岸和田

    徒歩9分(約700m)
金融施設
  • 岸和田春木泉郵便局

    徒歩5分(約350m)
  • 大阪信用金庫春木支店

    徒歩5分(約400m)

※掲載の分数表示は地図上の概測距離を徒歩は80mを1分、自転車は300mを1分として算出(端数切り上げ)したものです。

MAP

大阪府岸和田市春木中町

OUTLINE物件概要

物件概要
  • 物件名岸和田市春木中町
  • 所在地大阪府岸和田市春木中町
  • 交通 南海本線「春木」駅まで徒歩8分
  • 用途地域第一種住居地域
  • 建ぺい率60%
  • 容積率200%
  • 地目宅地
  • 総戸数1戸
  • 現況空家
  • 設備
    (電気・ガス・水道)
    都市ガス、電気、上水道、下水道
  • 駐車場
  • 接道状況南東側(公道):幅員約4.7m、間口約8.6m
  • 私道負担
  • 構造木造2階建て
  • 設備・特徴駐車2台可 / 即引渡可 / スーパー 徒歩10分以内 / システムキッチン / LDK15畳以上 / 対面式キッチン / トイレ2ヶ所 / 2階建 / 東南向き / 温水洗浄便座 / 床下収納 / 浴室に窓 / 都市近郊 / 全居室フローリング / パントリー(食器・食品の収納庫) / ウォークインクローゼット / 都市ガス / シューズインクローク / 全室2面採光 / 小学校 徒歩10分以内 / 平坦地 / 屋上 / 納戸 / 食器洗乾燥機
  • 土地の権利形態所有権
  • その他
    制限事項
    準防火地域、第三種高度地区
  • 取引態様売主
  • 備考※現状を優先します。
  • 売主伊勢住宅株式会社
    大阪府高石市高師浜4丁目1番27号
    TEL:072-265-5551/FAX:072-265-0102
    宅地建物取引業者免許/大阪府知事許可(3)第55382号
    建設業許可/大阪府知事許可(特-1)第134737号
    一級建築士事務所/大阪府知事許可(ハ)第23776号
    (一社)大阪府宅地建物取引業協会、(公社)近畿地区不動産公正取引協議会、(公社)全国宅地建物取引業保証協会

販売概要

  • 販売戸数1戸
  • 販売価格 3,580万円
  • 建物面積 115.93m2(35.06坪)
  • 土地面積 137.1m2(41.47坪)
  • 間取り3LDK+S
  • 完成時期(築年月) 2022年1月
  • 引渡し可能時期 即時
  • 情報提供日 2026年5月13日
  • 次回更新日 2026年5月27日
物件概要
見学予約・お問合せはこちら

お電話でのお問い合わせはこちら

0120-43-5551
営業時間:9:00~18:30